
L’entreprise Cazeaux Electricité propose son savoir-faire et son expertise en électricité pour les particuliers de la région Auvergne Rhône Alpes. Notre entreprise équipe les maisons et appartements neufs en matériel électrique afin de fournir l’électricité dans tout le bâtiment et d’alimenter vos équipements :
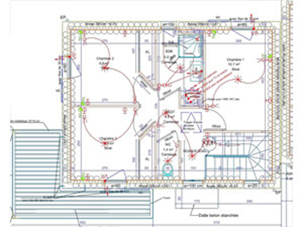
Nous élaborons les plans électriques en respectant les normes actuelles en matière d’électricité pour les logements individuels ainsi que les logements collectifs. Nous pouvons prendre en charge la totalité de votre chantier électrique jusqu’à la réalisation de la maintenance de vos équipements.
Installations électriques en neuf ou en rénovation, Cazeaux Electricité intervient en région Auvergne Rhône Alpes pour des travaux électriques auprès des particuliers, des collectivités, des entreprises...